Bittacy Close, Mill Hill, London, NW7

2 bedroom Bungalow

£799,950

  • 2 bedrooms
  • 1 bathroom
  • 1 reception
  • Key Information:
  • Council Tax: E
  • Tenure: Freehold

Key Features

  • DOUBLE FRONTED DETACHED BUNGALOW
  • TWO BEDROOMS
  • LARGE RECEPTION/DINING ROOM
  • FULY FITTED KITCHEN
  • BATHROOM
  • GUEST WC
  • PRETTY REAR GARDEN WITH SOUTHERLY ASPECT
  • OFF STREET PARKING & GARAGE
  • CLOSE TO WAITROSE, VIRGIN ACTIVE GYM
  • CHAIN FREE

Description

A rare opportunity to purchase this double fronted detached Bungalow offered for sale with no upper chain and peacefully set in this quiet and popular cul de sac.

The property is offered in good decorative order and comprises a Lounge/Dining Room, fitted Kitchen, Two Bedrooms, Bathroom and separate Wc.
Benefits include a landscaped Garden to side & rear with southerly aspect and attached garage via a driveway with off street parking.

In addition the property has a large loft area which has potential to be converted (STPP).

Bittacy Close is within approximately 1/2 a mile of the amenities at Mill Hill East including Northern Line Station, Waitrose and Virgin Active Gym.

Sole Agent


Location


Video Tour


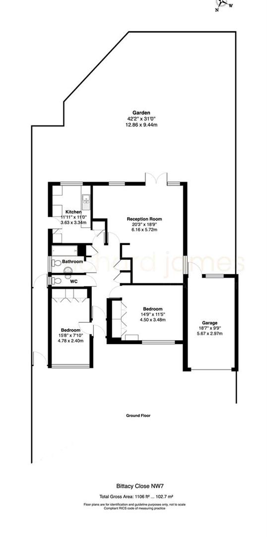
Floorplan

Floorplan for Bittacy Close, Mill Hill, London, NW7

Similar Properties

St. Vincents Lane, Mill Hill, NW7
For Sale

St. Vincents Lane, Mill Hill, NW7

3 Bed Apartment For Sale
£899,950
Featherstone Road, Mill Hill, NW7
For Sale

Featherstone Road, Mill Hill, NW7

2 Bed House For Sale
£675,000
Stanhope Gardens, London, NW7
For Sale

Stanhope Gardens, London, NW7

3 Bed End of terrace house For Sale
£700,000