Cranmer Road

4 bedroom Detached house

£800,000

  • 4 bedrooms
  • 2 bathrooms
  • 3 receptions
  • Key Information:
  • Council Tax: G
  • Tenure: Freehold

Description

Offered for sale with no upper chain is this beautifully presented Four Dedroom, Two Bathroom (one en-suite) detached family home situated on the popular Broadfields Estate within easy access to Mowbray Parade and Glengall Parade local shops and within easy access to all other local amenities including Edgware Northern Line tube station and is within the Eruv.

The accommodation is well planned to include a stunning Kitchen/Breakfast Room with bi-fold doors opening out onto the terrace which in turn, leads on to the Landscaped Garden with the whole house having underfloor heating throughout, irrigation system, CCTV and alarm.

The remainder of the accommodation comprises Principal Bedroom with en-suite Bathroom, Three further Bedrooms, one further Bathroom, Three Reception Rooms, and a Guest Wc.

There is ample off street parking, garage, and a landscaped rear garden.

Planning permission has been granted for a Roof extension, including rear dormer window.

Sole Agent


Location


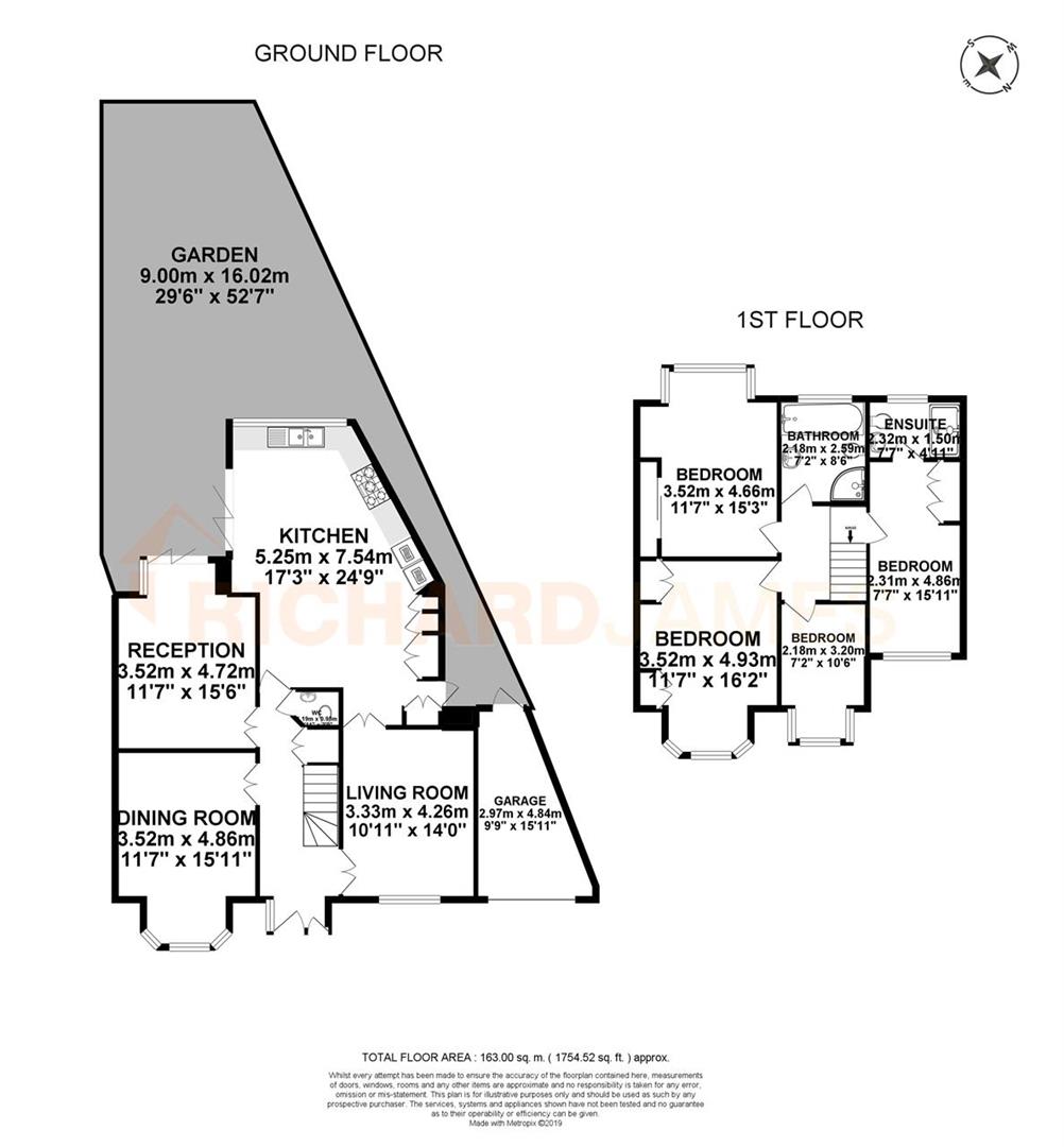
Floorplan

Floorplan for Cranmer Road

EPC

EPC for Cranmer Road

Similar Properties

Oakleigh Gardens, Edgware, HA8
For Sale

Oakleigh Gardens, Edgware, HA8

4 Bed Detached house For Sale
£1,375,000
Canons Drive, Edgware, HA8
For Sale

Canons Drive, Edgware, HA8

4 Bed Detached house For Sale
£1,750,000
Stoneyfields Lane, Edgware, HA8
For Sale

Stoneyfields Lane, Edgware, HA8

5 Bed Semi-detached house For Sale
£850,000