Victoria Road, Mill Hill, NW7

4 bedroom Semi-detached house Sold STC

£1,195,000

  • 4 bedrooms
  • 2 bathrooms
  • 2 receptions
  • Key Information:
  • Council Tax: F

Key Features

  • FAMILY HOME
  • OFF STREET PARKING FOR TWO CARS
  • LANDSCAPED REAR GARDEN
  • STUNNING VIEWS OVER ST JOSEPH COLLEGE FIELDS
  • FOUR BEDROOMS
  • TWO BATHROOMS (ONE EN SUITE)
  • GUEST WC
  • CLOSE TO LOCAL AMENITIES
  • TWO RECEPTION ROOMS
  • KITCHEN / BREAKFAST ROOM

Description

Backing directly onto St Joseph’s college fields is this immaculately presented semi detached, Four bedrooms, Two bathrooms (one en suite shower room) family home located within a sought after leafy cul de sac, moments from Mill Hill Broadway.

The house has been extended and refurbished in recent years and provides bright well planned accommodation over three floors and includes a stunning Kitchen/Family/Diner, Tv/Family Room, Utility Room & Guest Wc.

Externally there is a delightful rear garden extending to approximately 65' with wonderful rolling green views over fields and off street parking for two cars with an electric charging point.

Victoria Road is close to numerous transport and shopping amenities, Mill Hill Park, Arrandene open space and various local schools, including Etz Chaim Primary School.

Council tax band H

Sole Agent


Location


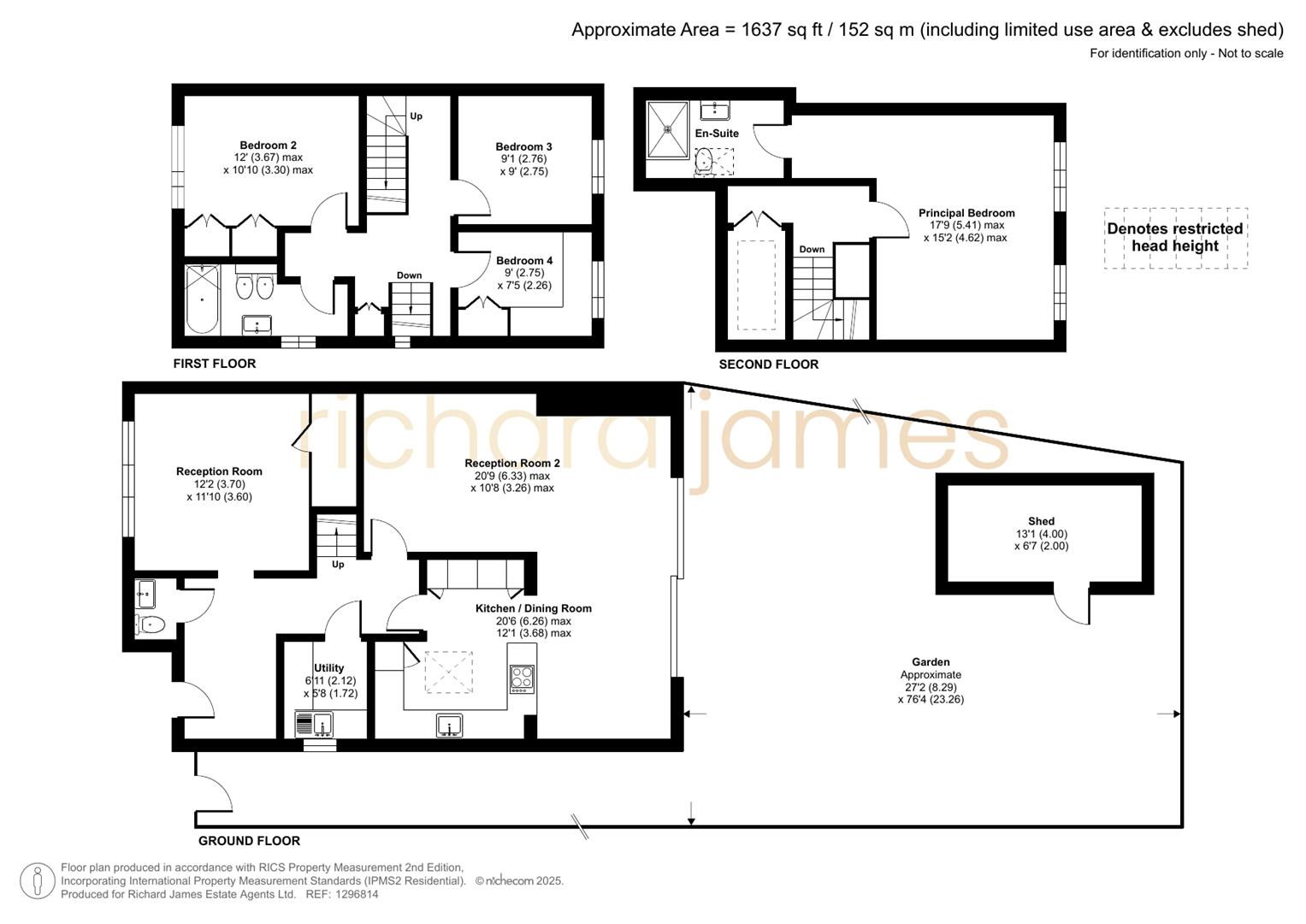
Floorplan

Floorplan for Victoria Road, Mill Hill, NW7

EPC

EPC for Victoria Road, Mill Hill, NW7

Similar Properties

Hendon Wood Lane, Mill Hill, NW7
For Sale

Hendon Wood Lane, Mill Hill, NW7

4 Bed Detached house For Sale
£1,200,000
Fernside Avenue, Mill Hill, NW7
For Sale

Fernside Avenue, Mill Hill, NW7

4 Bed Semi-detached house For Sale
£925,000
Page Street, Mill Hill, NW7
For Sale

Page Street, Mill Hill, NW7

2 Bed Apartment For Sale
£485,000